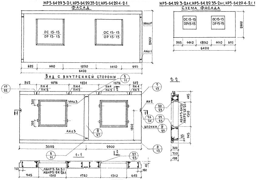
НР5-64.29.4-2-1

Чертеж изделия:
Чертеж НР5-64.29.4-2-1
Характеристики изделия:
ПараметрЗначение
Длина6400 мм
Ширина400 мм
Высота2900 мм
Масса7700 кг
Нормативный документСерия 1.132-1

НР5-64.29.4-2-1   Наружная стеновая панель рядовая по Серии 1.132-1.